سيستم آشپزخانه کلاسيک
سيستم آشپزخانه کلاسيک

ClasicDecor


طراحي و اجراي انواع دکوراسيون داخلي

کوشا اسديان


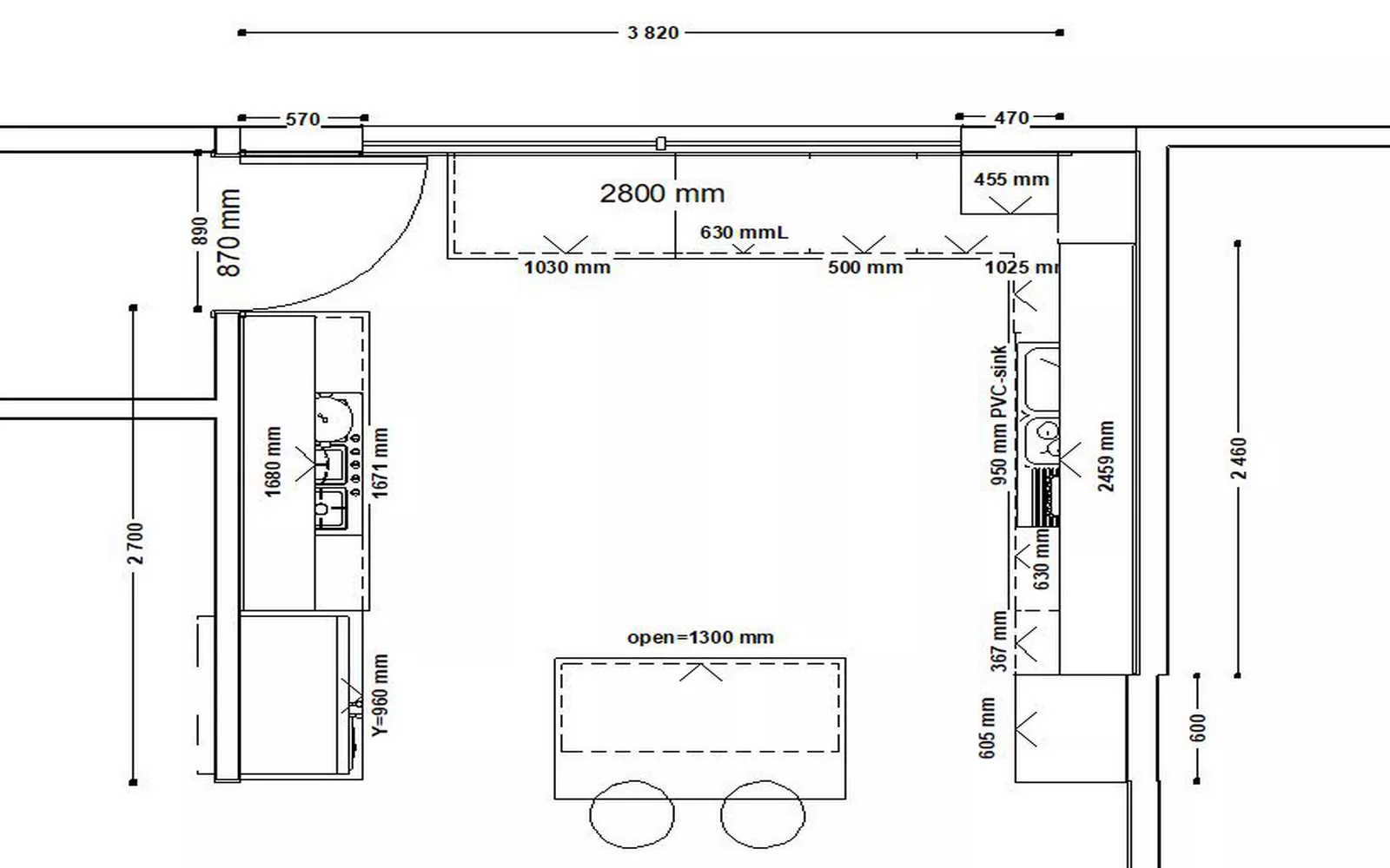
: پلان طرح
کابينت مدرن و نيو کلاسيک و ميز تي دي

: نشاني
.

: کارفرما
آقاي


شماره : 76099

تاريخ : 08/02/1404

پلان : 1
سيستم آشپزخانه کلاسيک
آدرس : خيابان استخر بوستان هشتم غربي پ 58 - تلفن : 09123170406

امضاء پيمانکار


امضاء کارفرما
سيستم آشپزخانه کلاسيک
ClasicDecor
سيستم آشپزخانه کلاسيک
سيستم آشپزخانه کلاسيک

ClasicDecor


طراحي و اجراي انواع دکوراسيون داخلي

کوشا اسديان


: پلان طرح
کابينت مدرن و نيو کلاسيک و ميز تي دي

: نشاني
.

: کارفرما
آقاي


شماره : 76099

تاريخ : 08/02/1404

پلان : 2
سيستم آشپزخانه کلاسيک
آدرس : خيابان استخر بوستان هشتم غربي پ 58 - تلفن : 09123170406

امضاء پيمانکار


امضاء کارفرما
سيستم آشپزخانه کلاسيک
ClasicDecor